Herold 5 Sterne Banner TipTop 2024 SMK Immo Treuhand
Zur Startseite der SMK Immo Treuhand Website

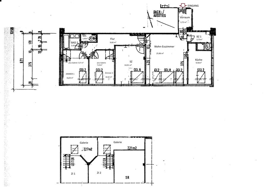
NÄHE PRATERSTERN – HELLES 4-ZIMMER DACHGESCHOSSAPARTMENT


Drucken
1 WZ 1
2 WZ
3 KÜ 1
4 KÜ 2
5 Eingang
6 BZ 2
7 SZ (2)
8 Flour
9 Zimmer 1
10 ZI Galerie
11 Galerie ZI 1
12 ZI 1 mit Galerie
13 BZ 2
14 ZI 2 mit Galerie
15 Plan
1 WZ 1
Ihr Betreuer
Erna Bruckner

Frau Erna Bruckner

+43 664/1000944


Mietkosten
pro Monat € 1.590,00
  Kaution:
€ 4.500,00
Überblick
  Objektnummer:
2417/9563
  Vermarktungsart:
Miete
  Objektart:
Wohnung
  Bundesland:
Wien
  Bezirk:
Wien 2.,Leopoldstadt
  Ort:
Wien, Leopoldstadt
  Nähe:
Praterstern
  Lage:
Stadtzentrum
Flächen
  Wohnfläche:
ca. 106 m²
  Zimmer:
4
  Bäder:
2
Detaildaten
Baujahr:
2005
Alter:
Neubau
Stockwerk:
5
Etagen gesamt:
1
Fahrstuhl:
Öffentliche Anbindung:
Bus, Schnellbahn, Strassenbahn, U-Bahn,
Lage:
Grünlage, Ruhelage, Sonnige Lage, Stadtzentrum,
Ausstattung
Anzahl WC's:
2
Küche möbliert:
Geschirrspüler:
Waschmaschine:
Gegensprechanlage:
Heizung
Gasetagenheizung:
HWB Klasse:
C

Beschreibung
NÄHE PRATERSTERN – HELLES 4-ZIMMER DACHGESCHOSSAPARTMENT Dieses, sehr helle 4 Zimmer Apartment wird soeben renoviert und ist mit 1. Februar bezugsfertig. Das Apartment befindet sich in unmittelbarer Nähe zum Praterstern, in der Venediger Au und bietet beste Verkehrsanbindung, sehr gute Infrastruktur sowie Ruhelage. Die ca. 106 m2 Nutzfläche gliedert sich in: Vorzimmer, Wohn-Esszimmer, Küche, 1 Badezimmer mit Waschtisch, Dusche und WC, Flur, Schlafzimmer, 2 Zimmer mit je einer ca. 7m² großen Galerie, 1 Badezimmer mit Badewanne und Doppel-Waschtisch, 1 WC extra. Besonders erwähnenswert sind sowohl die hervorragende Lage (Praterstern U2, Praterallee sowie die Ruhelage. Durch die sehr gute Raumaufteilung ist die Wohnung auch als WG sehr gut geeignet. Die gediegene Ausstattung reicht von Kunststofffenster, Vinylböden, Küche ist mit allen Geräten ausgestattet, 2 Bäder, 1 WC. Der Pauschalmietzins beinhaltet: Nettomiete, Betriebskosten und Umsatzsteuer. Verbraucherkosten wie Strom, Gas, Internet, GIS werden gesondert mit dem jeweiligen Anbieter verrechnet. Um Sie bemüht: Fr. Bruckner, Tel.: 0664/1000944, Email: erna.bruckner@smkimmobruckner.at Es wird darauf hingewiesen, dass die angeführten Daten, ausschließliche auf Informationen des Verkäufers/Vermieter oder Dritter (z.B. Behörden) beruhen, so dass für die Richtigkeit keine Gewähr übernommen werden wird! Auf Grund der gesetzlichen Nachweispflicht gegenüber dem Eigentümer bitten wir Sie um Verständnis, dass wir nur Anfragen mit vollständigem Namen, korrekter Telefonnummer und E-Mailadresse bearbeiten können. Ihre Daten werden selbstverständlich vertraulich behandelt.
Ihr Betreuer
Erna Bruckner

Frau Erna Bruckner

+43 664/1000944